31/05/2025
Con la llegada del invierno, la necesidad de una ducha caliente se vuelve fundamental para el confort en cada hogar. El calefont, también conocido como calefón, es el protagonista indiscutible que nos brinda ese alivio reconfortante. Sin embargo, su correcta instalación es tan crucial como su función. ¿Sabes dónde y cómo debe instalarse un calefont de manera segura y eficiente, especialmente aquellos con ventilación horizontal? En este artículo, desglosaremos cada aspecto esencial, desde las normativas de seguridad hasta las ubicaciones ideales, para que tu equipo funcione perfectamente y sin riesgos, asegurando que el "tamaño" de tu espacio sea el adecuado para su operación.

- La Importancia de un Profesional: Instalación Segura
- Instalación en Interiores: Requisitos y Precauciones Espaciales
- El Ducto de Ventilación Horizontal: Un Componente Crítico
- Instalación en Exteriores: La Opción Preferida y Segura
- Tipos de Calefonts y su Eficiencia: Una Comparativa
- Preguntas Frecuentes sobre la Instalación de Calefonts
- Conclusión
La Importancia de un Profesional: Instalación Segura
Antes de sumergirnos en los detalles técnicos de la ubicación, hay un principio fundamental que no podemos pasar por alto: la instalación de un calefont, sobre todo aquellos equipados con sistemas de ventilación horizontal, debe ser realizada exclusivamente por un instalador autorizado por la Superintendencia de Electricidad y Combustibles (SEC). Esta exigencia no es una mera formalidad; es una medida de seguridad vital para proteger a tu familia y tu patrimonio. Un instalador certificado posee el conocimiento y la experiencia necesarios para manipular conexiones de gas y agua, asegurar una correcta evacuación de gases y verificar que el equipo cumpla con todas las normativas vigentes. Ignorar esta recomendación puede derivar en fugas de gas, acumulación de monóxido de carbono –un gas inodoro e incoloro pero letal–, o un funcionamiento ineficiente que eleve tus costos energéticos. Además, una instalación no certificada podría anular la garantía del fabricante y complicar cualquier reclamo futuro.
La normativa chilena es clara al respecto: la seguridad es prioritaria. Un profesional SEC garantiza que cada conexión, cada ducto y cada medida se ajusten a los estándares más altos, evitando peligros y asegurando la longevidad de tu calefont. La inversión en un instalador autorizado es una inversión en tranquilidad y en la protección de tu hogar.
Instalación en Interiores: Requisitos y Precauciones Espaciales
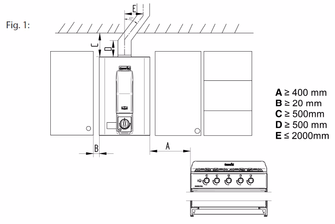
Si bien la tendencia actual y la normativa favorecen la instalación de calefonts en exteriores para maximizar la seguridad, existen situaciones donde la ubicación interior es necesaria. En estos casos, es imperativo cumplir con una serie de requisitos estrictos para asegurar una ventilación horizontal óptima y minimizar cualquier riesgo asociado. Estas especificaciones determinan el "tamaño" mínimo del espacio necesario para que tu calefont opere de forma segura y eficiente.
Dimensiones Mínimas del Recinto
El espacio destinado a la instalación del calefont debe contar con un volumen mínimo de 7 metros cúbicos (m³). Esto se traduce en dimensiones aproximadas de al menos 3 metros de largo, 1 metro de ancho y 2,4 metros de alto. Esta medida no es arbitraria; un volumen adecuado garantiza una correcta circulación de aire, lo que es vital para la combustión eficiente del gas y, más importante aún, para evitar la acumulación de gases tóxicos en caso de una falla en la evacuación. Un espacio confinado sin la ventilación adecuada puede convertirse rápidamente en un ambiente peligroso, comprometiendo la calidad del aire interior y la seguridad de los ocupantes.
Alturas de Instalación y Accesibilidad
Las alturas a las que se instalan los componentes del calefont también son cruciales para su funcionalidad y seguridad. Las llaves de paso de agua, tanto fría como caliente, deben ubicarse a una altura de 90 cm desde el nivel del piso. Por su parte, el calefont en sí debe instalarse a una altura que oscile entre los 110 y 120 cm. Estas alturas no solo facilitan el acceso para la operación, el encendido y el mantenimiento del equipo, sino que también aseguran que esté a una distancia prudente de posibles fuentes de salpicaduras o humedad del suelo, protegiendo sus componentes electrónicos y mecánicos de daños prematuros.
Distancia con Otras Instalaciones
La precaución se extiende a la proximidad con otras instalaciones eléctricas o fuentes de humedad. Es fundamental que el calefont mantenga una distancia mínima de 60 cm de cualquier enchufe o punto eléctrico. Esta separación previene riesgos de cortocircuitos por salpicaduras de agua o por el calor emitido por el equipo, así como posibles interferencias electromagnéticas. Además, y por razones obvias de seguridad, higiene y durabilidad, el calefont nunca debe instalarse directamente sobre el lavaplatos o cualquier otra fuente constante de humedad que pueda afectar su funcionamiento, corroer sus componentes internos o facilitar la proliferación de bacterias.
El Ducto de Ventilación Horizontal: Un Componente Crítico
La evacuación de los gases de combustión es, sin lugar a dudas, uno de los aspectos más críticos en la instalación de un calefont, especialmente en aquellos con ventilación horizontal. Un ducto de salida de gases defectuoso, mal instalado o fabricado con materiales inadecuados puede tener consecuencias fatales, ya que los gases como el monóxido de carbono son invisibles e inodoros, pero altamente tóxicos. Por ello, la elección del material y la correcta instalación del ducto son innegociables para la seguridad de tu hogar.
El ducto debe ser fabricado con materiales resistentes a la corrosión y a las altas temperaturas, como acero inoxidable, aluminio o acero galvanizado. Es vital que cumpla con las especificaciones de espesor y resistencia dictadas por la normativa vigente, garantizando que no se degrade con el tiempo y que pueda soportar la temperatura constante de los gases de escape sin deformarse ni liberar sustancias nocivas. La unión entre el calefont y el ducto debe ser completamente hermética, sin fugas, para asegurar que todos los gases sean dirigidos de manera eficiente y segura hacia el exterior.
La característica distintiva de la instalación con ventilación horizontal es que el ducto debe tener una salida directa y sin obstrucciones al exterior, preferiblemente a través de una pared. Esta configuración asegura que los gases de combustión sean expulsados eficientemente fuera del hogar, evitando su acumulación en el interior. Es crucial que esta salida esté libre de cualquier obstáculo que pueda impedir el flujo de aire o permitir el retorno de los gases al recinto, como árboles, arbustos o construcciones cercanas. Un diseño y una instalación adecuados del ducto de ventilación son sinónimo de seguridad, salud y tranquilidad para los habitantes de la vivienda.
Instalación en Exteriores: La Opción Preferida y Segura
La instalación de un calefont en exteriores es, en la mayoría de los casos, la opción más recomendada y segura, especialmente para aquellos modelos que requieren ventilación horizontal. Esta configuración aprovecha la ventilación natural del ambiente, reduciendo drásticamente los riesgos asociados a la acumulación de gases en espacios cerrados y facilitando la disipación de cualquier residuo de combustión.
Protección Indispensable: El Gabinete
Aunque el exterior ofrece ventajas claras en términos de ventilación, el calefont queda expuesto a los elementos naturales. Por ello, es imprescindible instalar un gabinete protector que resguarde el artefacto de la intemperie. Este gabinete debe ser robusto, resistente a la corrosión (idealmente fabricado en materiales como acero galvanizado o con recubrimientos especiales) y diseñado específicamente para permitir la circulación de aire alrededor del calefont, al mismo tiempo que lo protege eficazmente de la lluvia, el viento, el polvo, la radiación solar directa y las variaciones extremas de temperatura. Una protección adecuada no solo prolonga la vida útil del equipo al prevenir el deterioro de sus componentes, sino que también asegura su funcionamiento óptimo y constante, evitando fallas causadas por la exposición directa al clima.
Medidas y Distancias de Seguridad
Incluso en exteriores, es vital respetar distancias mínimas de seguridad con respecto a otras estructuras y aberturas. Es fundamental mantener distancias específicas de ventanas, puertas, rejillas de ventilación y otras aberturas hacia el interior del hogar. Esto es crucial para garantizar que los gases de combustión expulsados por el ducto de ventilación horizontal no puedan reingresar a la vivienda a través de corrientes de aire o aperturas, lo que representaría un riesgo para la salud de los ocupantes. Un instalador autorizado por la SEC conocerá estas distancias precisas, que varían según la normativa local y el tipo de calefont, y se asegurará de que tu equipo esté ubicado en un punto donde su operación no represente ningún riesgo para los ocupantes de la vivienda o para los vecinos.
La elección de una ubicación exterior, sumada a la protección adecuada y el respeto por las distancias de seguridad, convierte la instalación del calefont en una solución eficiente, duradera y, sobre todo, extremadamente segura para tu suministro constante de agua caliente.
Tipos de Calefonts y su Eficiencia: Una Comparativa
La elección del tipo de calefont es una decisión importante que influye directamente en la eficiencia, el costo y los requisitos de instalación. Si bien este artículo se centra en la instalación, es útil comprender las diferencias fundamentales entre los modelos más comunes para tomar una decisión informada. A continuación, presentamos una tabla comparativa entre los calefonts de tiro natural y los de tiro forzado, destacando sus características principales, especialmente en relación con la ventilación horizontal.
Los calefonts de tiro natural dependen de la diferencia de densidad entre los gases calientes de combustión y el aire frío para la evacuación, lo que los hace más dependientes de las condiciones atmosféricas y del diseño del ducto. En contraste, los de tiro forzado utilizan un ventilador para expulsar activamente estos gases, lo que les confiere una mayor versatilidad en la instalación y una eficiencia superior al asegurar una combustión más completa.
| Característica | Calefont de Tiro Natural | Calefont de Tiro Forzado |
|---|---|---|
| Mecanismo de Ventilación | Depende de la convección natural del aire para evacuar gases. | Utiliza un ventilador para expulsar los gases de combustión. |
| Tipo de Ventilación Común | Principalmente vertical. La ventilación horizontal es posible, pero con requisitos más estrictos de diseño. | Frecuentemente horizontal o vertical, con mayor flexibilidad en la ubicación del ducto. |
| Eficiencia Energética | Menor, ya que parte del calor puede perderse por el ducto y es más sensible a corrientes de aire. | Mayor, debido a una combustión más controlada y una evacuación de gases más efectiva y precisa. |
| Complejidad de Instalación | Más sencilla en términos de ductos, pero requiere mayores volúmenes de aire y alturas. | Más compleja debido a los componentes electrónicos y al sistema de ventilación asistida. |
| Requisitos de Espacio | Necesita mayores volúmenes de aire en el recinto y ductos más largos para asegurar el tiro. | Puede instalarse en espacios más reducidos gracias a la ventilación asistida, que no depende tanto del volumen de aire del recinto. |
| Precio Inicial | Generalmente menor. | Generalmente mayor, justificado por la tecnología avanzada y la mayor eficiencia. |
| Seguridad | Alta si está bien instalado y mantenido, pero más sensible a condiciones ambientales adversas. | Muy alta, con sistemas de seguridad avanzados que detectan fallas en la evacuación de gases y apagan el equipo. |
Para determinar qué tipo de calefont es el más adecuado para tu hogar, considera el tamaño de tu vivienda, el número de puntos de consumo de agua caliente que necesitas abastecer simultáneamente y, por supuesto, tu presupuesto. Un experto podrá asesorarte sobre la mejor opción para tus necesidades específicas y las características de tu instalación.
Preguntas Frecuentes sobre la Instalación de Calefonts
La instalación de un calefont puede generar diversas dudas, y es natural buscar claridad en un tema tan importante para la seguridad y el confort del hogar. A continuación, respondemos a algunas de las preguntas más habituales que surgen, especialmente en relación con los modelos de ventilación horizontal, para brindarte mayor información y tranquilidad.
¿Qué tipo de calefont es mejor para mi hogar?
La "mejor" opción es subjetiva y depende de varios factores clave de tu hogar y tus hábitos de consumo. Debes considerar el número de baños y puntos de agua caliente que necesitas abastecer simultáneamente (una ducha, dos duchas, lavaplatos, etc.), la presión del agua disponible en tu red, el tipo de gas (natural o licuado) al que tienes acceso y, por supuesto, tu presupuesto inicial y los costos operativos a largo plazo. Para hogares con alta demanda simultánea de agua caliente o donde la ventilación natural es limitada, un calefont de tiro forzado puede ser la opción más eficiente y segura, ya que su sistema de evacuación de gases es activo. Si tu demanda es moderada y cuentas con un espacio bien ventilado que cumple con las dimensiones mínimas, un calefont de tiro natural podría ser suficiente. La recomendación es siempre consultar con un experto en gas y calefacción, quien realizará una evaluación exhaustiva de tus necesidades y las características de tu vivienda para sugerirte el modelo ideal.
¿Puedo instalar un calefont yo mismo?
Rotundamente, no. La instalación de un calefont es un proceso complejo que involucra intrincadas conexiones de gas, agua y sistemas de evacuación de gases. Un error en cualquiera de estos puntos puede tener consecuencias gravísimas, incluyendo fugas de gas, incendios, explosiones o intoxicación por monóxido de carbono, un gas inodoro y letal. La normativa chilena, a través de la Superintendencia de Electricidad y Combustibles (SEC), es muy clara y exige que toda instalación de artefactos a gas, incluidos los calefonts, sea realizada por un instalador autorizado por la SEC. Esto no solo asegura que el trabajo se realice bajo los más altos estándares de seguridad y calidad, sino que también garantiza la protección de tu hogar y tu familia, además de la validez de la garantía del equipo en caso de cualquier eventualidad.
¿Cuál es la vida útil de un calefont?
La vida útil de un calefont puede variar significativamente, pero en promedio, un equipo bien mantenido y de buena calidad puede durar entre 8 y 10 años. Sin embargo, este promedio puede extenderse o acortarse dependiendo de varios factores. La frecuencia de uso, la calidad del agua (la acumulación de sarro y sedimentos puede reducir drástiamente su eficiencia y vida útil), la calidad de la instalación inicial y, fundamentalmente, la realización de mantenimientos preventivos regulares influyen directamente en su durabilidad. Un mantenimiento anual por parte de un técnico cualificado puede detectar y corregir pequeños problemas antes de que se conviertan en fallas mayores, como la limpieza de quemadores, revisión de fugas y descalcificación, extendiendo así la vida útil de tu calefont y asegurando su eficiencia a lo largo del tiempo.
¿Qué tipo de calefont es el más eficiente?
En términos generales y bajo condiciones normales de uso, los calefonts de tiro forzado suelen ser considerablemente más eficientes que los de tiro natural. Esto se debe a que incorporan un ventilador que expulsa activamente los gases de combustión, permitiendo una combustión más completa y controlada, lo que se traduce en un mejor aprovechamiento del gas. Esta característica los hace más versátiles en cuanto a la instalación, ya que no dependen tanto de las condiciones de ventilación natural del recinto y pueden instalarse en lugares con menos restricciones de volumen de aire. Además, muchos modelos de tiro forzado incluyen sistemas de modulación de llama, encendido electrónico y sensores de flujo de agua, que optimizan el consumo de gas al calentar solo el agua necesaria en cada momento y a la temperatura justa, lo que se traduce en un ahorro significativo en la factura de gas a largo plazo. Si la eficiencia y el ahorro energético son prioridades para ti, un calefont de tiro forzado es una excelente inversión.
Conclusión
La correcta instalación de un calefont, especialmente aquellos diseñados con ventilación horizontal, es mucho más que un simple procedimiento técnico; es una inversión directa en la seguridad, el confort y la eficiencia energética de tu hogar. Hemos explorado en detalle los requisitos espaciales para instalaciones interiores, la importancia crucial de un ducto de evacuación de gases adecuado, y las ventajas de la instalación en exteriores con su correspondiente protección. La elección del tipo de calefont y la comprensión de sus características también juegan un papel fundamental en el rendimiento general del equipo.
Recuerda siempre la regla de oro: la instalación de cualquier calefont debe ser efectuada por un profesional autorizado por la SEC. Esta medida no solo garantiza el cumplimiento de la normativa vigente y la validez de la garantía del fabricante, sino que, lo más importante, asegura que tu equipo funcione de manera segura, eficiente y sin riesgos para tu familia. No comprometas la seguridad de tu hogar por intentar ahorrar en la instalación; la tranquilidad y el bienestar que te brinda un calefont bien instalado no tienen precio. Si aún tienes dudas o necesitas asesoramiento específico para tu situación, no dudes en contactar a un experto en instalaciones de gas. ¡Disfruta del agua caliente de forma segura y responsable!
Si quieres conocer otros artículos parecidos a Calefont: Guía Completa de Instalación Segura puedes visitar la categoría Acero Inoxidable.
